Search

Cedarholm Community Building Timeline

2L7A6419
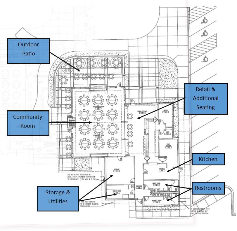
Cedarholm New Clubhouse Sketch
Indoor Cedarholm Drawing

Out with the Old!


The old clubhouse at Cedarholm Golf Course was razed in late September 2017 to make way for a 5,000-square foot Community Building. The new facility opened in June of 2018. In addition to serving as the new golf course clubhouse and cart storage facility, the building features a community gathering space and banquet facility with seating for up to 120.

To view the plans for the new Cedarholm Community Building, click here!

If you have questions please check in with the Cedarholm staff or call 651-792-7154.



Drone Imagery from the demolition of the old clubhouse courtesy of Jorgenson Construction inc.

Cart Storage Prep September 28, 2017

New cart storage building

Building Foundation October 19, 2017

DSC00194

Building Footings October 12, 2017

Pouring the concrete

Building Foundation November 17, 2017

Building foundation from the air

Masonry-Below Grade November 17, 2017

Building footings

Steel Framing December 7, 2017

2L7A7664

Wood Framing December 12, 2017

DSC00449

Wood Framing January 9, 2018

DJI_0015

First Windows February 27, 2018

DSC00759

Aerial View March 19, 2018

DJI_0009

Concrete Slab Pour November 20, 2017

DJI_0005

Steel Framing December 4, 2017

DSC00343

Wood Framing January 3, 2018

DSC00520

Community Building February 14, 2018

DJI_0005

Community Room February 27, 2018

DSC00760

Community Room April 10, 2018

DSC00900

Drone Imagery of the Community Building courtesy of Mark Connolly

Entrance View April 30th

DSC00978

Entry/Service Counter May 15th

DSC01117

Patio Area May 22nd

DSC01105

Entry/Service Counter June 15th

2L7A6246

Patio Area June 15th

2L7A6350

Community Room June 15th

DSC01497
  1. Roseville MN Homepage

Hours

  1. Weather Lines

  2. Youth: 651-792-7417

  3. Adult: 651-792-7416

Contact Us

  1. 2660 Civic Center Drive

  2. Roseville, MN 55113

  3. Phone: 651-792-7006

  4. Fax: 651-792-7100

  5. View Staff Directory

<---- Userway script----->
Arrow Left Arrow Right
Slideshow Left Arrow Slideshow Right Arrow